Unternehmen im Bereich Gesundheit
Büren
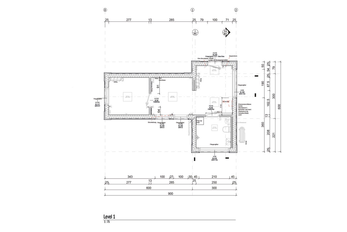
Wohnraum, Aufenthaltsraum, Küche
Büren
Premium Wohncontainer W5-NL-1
36m²
Außenwände: WPC Holzoptik (Eiche)
Rahmen: Weiß (RAL 9010)
Attika/ Kassettenverkleidung: Weiß (RAL 9010)
Innenwände und Decke: Weiß (RAL 9010)
Boden: Klickvinyl (Anthrazit)
Tische
Stühle
Kleiderspinde
Küche
Split-Klimagerät
Abwassertank
Rollladen
Für ein Unternehmen im Gesundheitssektor wurde eine moderne und nachhaltige Wohnlösung realisiert: Der Wohncontainer W-NL von Conliving mit 36 m² Wohnfläche vereint hochwertige Materialien mit effizienter Technik und innovativer Architektur.
Zeitgemäßes Design mit natürlicher Ästhetik
Die Außenfassade des Wohncontainers kombiniert eine Kassettenverkleidung in Weiß (RAL 9010) mit einer edlen WPC-Holzoptik in Eiche, die ein modernes und zugleich naturnahes Erscheinungsbild schafft. Große dreifachverglaste Fenster sorgen für ein lichtdurchflutetes Raumgefühl und bieten gleichzeitig eine hervorragende Wärmeisolierung. Durch die kompakte Bauweise und stilvolle Optik fügt sich das Tiny House harmonisch in jede Umgebung ein – ideal für gesundheitsorientierte Wohn- oder Arbeitsbereiche.
Nachhaltige Energieversorgung durch Photovoltaik
Ein herausragendes Merkmal des Projekts ist die Photovoltaik-Außenfassade, die mit sechs Sunpal Hixam Modulen, einem 3-Phasen-Wechselrichter und einem Batteriespeicher (6,12 kW) eine unabhängige Energieversorgung ermöglicht. Durch die Solarstromerzeugung kann der Container seinen Energiebedarf teilweise oder vollständig selbst decken, wodurch sich Betriebskosten senken lassen und ein nachhaltiger Beitrag zum Umweltschutz geleistet wird.
Maximaler Wohnkomfort mit intelligenter Klimatechnik
Das Raumklima wird durch eine moderne Luftwärmepumpe (3,5 kW, Gree Lomo Economic) reguliert, die sowohl heizen als auch kühlen kann. Zusätzlich sorgt eine Infrarot-Fußbodenheizung für angenehme Wärme in den kalten Monaten. Dank intelligenter Steuerung per WiFi lässt sich das System bequem anpassen, um maximalen Wohnkomfort zu gewährleisten.
Durchdachte Ausstattung für gesundheitsorientiertes Wohnen
Die Innenausstattung wurde mit besonderem Augenmerk auf Komfort und Barrierefreiheit gestaltet. Der Bodenbelag in Klickvinyl (Anthrazit) ist nicht nur modern, sondern auch pflegeleicht und strapazierfähig. Im Badezimmer unterstreicht eine bodentiefe Dusche mit gefliester Rampe die barrierefreie Nutzung. Ein hängendes WC sowie ein behindertengerechtes Waschbecken sorgen für optimale Ergonomie. Die Küche ist durch vorbereitete Anschlüsse leicht integrierbar, während ein 50-Liter-Boiler für eine zuverlässige Warmwasserversorgung sorgt.
Hochwertige Dämmung und energieeffiziente Bauweise
Alle Außen- und Innenwände sind mit 150 mm Mineralwolldämmung (Isover 30, WLG 030) ausgestattet, die einen exzellenten Wärmeschutz bietet. Durch die Kombination mit einer doppelt beplankten Gipskartondecke (F30) wird nicht nur die Energieeffizienz optimiert, sondern auch ein hoher Schallschutz erreicht. Der niedrige U-Wert der Verglasung (0,7 W/m²K) minimiert Wärmeverluste und sorgt für eine behagliche Atmosphäre.
Flexibel einsetzbar für verschiedenste Gesundheitsbereiche
Dank der kompakten und modularen Bauweise eignet sich der Wohncontainer W-NL ideal für unterschiedliche Gesundheitsanwendungen – sei es als Rückzugsort für Patienten, als ergonomischer Arbeitsbereich für Therapeuten oder Ärzte, oder als Erweiterung für Kliniken und Rehazentren. Der schnelle Aufbau und die nachhaltige Bauweise machen ihn zu einer zukunftsweisenden Lösung für gesundheitsbewusstes Wohnen und Arbeiten.
Mit diesem Projekt setzt das Unternehmen auf eine innovative und umweltfreundliche Raumlösung, die modernen Wohnkomfort mit nachhaltiger Technik vereint – eine Investition in die Zukunft des gesundheitsorientierten Bauens.
Häufig gestellte Fragen:
Welche Containergrößen gibt es?
Wir arbeiten nicht mit klassischen ISO-Container Abmessungen, weshalb wir flexibler in der Findung der passenden Größe sind. Produktionstechnisch können einzelne Containermodule von 1.500 mm x 1.500 mm bis 6.000 mm x 3.000 mm hergestellt werden. Unterhalb finden Sie von uns empfohlene/gängige Abmessungen:
Standard-Außenabmessung (Breite):
2.450 mm / 3.000 mm
Individual Außenabmessung (Breite):
1.500 mm - 2.990 mm (oben angeführte Standards ausgenommen)
Häufig verwendete Außenabmessung (breite):
4,900 mm / 6.000 mm / 7.350 mm
Individual Außenabmessung (Länge):
1.500 mm - 6.000 mm
Braucht man eine Genehmigung oder kann man die Container einfach aufstellen?
Ob Ferienhaus, Lager oder Werkstatt, für die Aufstellung und Nutzung eines Containers, der nicht nur vorübergehend auf einem Auflieger abgestellt wird, muss oft eine Genehmigung bei der örtlichen Gemeinde beantragt werden. Abhängig von der tatsächlichen Größe und des Verwendungszweckes können auch Container anzeige- bzw. bewilligungspflichtige Bauvorhaben sein. Bitte beachten Sie hierzu die jeweilige Bauordnung der Bundesländer. Sollte eine Genehmigung notwendig sein, unterstützt Conliving Sie bei diesem Vorhaben mit unseren kompetenten Fachwissen und Architekten.
Werden Container überhaupt für die Nutzung zugelassen?
Unsere Raummodule erfüllen alle Vorschriften eines herkömmlichen Gebäudes entsprechend der EnEV 2016, sowie der zutreffenden Bauordnung. Die Landesbauordnungen regeln genehmigungspflichtige und genehmigungsfreie bauliche Anlagen jeglicher Nutzung – mit großen regionalen Unterschieden. In einigen Bundesländern wie beispielsweise Bayern sind Bauten im Außengebiet grundsätzlich genehmigungspflichtig, in anderen sind sie verfahrensfrei, sofern sie eine bestimmte Größe nicht überschreiten. Dadurch kann bei Bedarf die jeweilige Container Raummodul Lösung an das Ortsbild angepasst werden. Dies kann oftmals die Farbe und Art der Fassade, sowie die Dachform beeinflussen.
Benötigt man eine Fundamentplatte?
Eine komplette Fundamentplatte ist nicht notwendig. Unsere Container stehen ausschließlich auf den Ecken und dem umlaufenden Stahlrahmen. Aus diesem Grund ist die Aufstellung auf einem Punkt- oder Streifenfundamenten ausreichend.
Wer erstellt das Fundament?
Grundsätzlich gibt es die Möglichkeit, das Fundament selbst zu erstellen bzw. örtliche Baufirmen/Baumeister zu beauftragen. Unsere Techniker stellen für jedes Projekt passende Fundamentvorschläge zur Verfügung. Wichtig hierbei ist, dass auch unsere Vorgaben hinsichtlich des Abstandes zum Erdreich eingehalten werden. Optional gibt es die Möglichkeit die Fundamente durch uns erstellen zu lassen.
Kann man die Container auch in Einzelteilen liefern lassen?
Es gibt Unternehmen, bei denen aufgrund der Transportwege und der Quantität die Containereinheiten in einem zerlegten Zustand ("Flat-Pack") geliefert und Vorort montiert werden. Bei unseren hochwertigen Raummodulen besteht jedoch ausschließlich die Möglichkeit diese in fertiggestellter Größe zu transportieren. Die Zufahrt muss daher zwingend für LKW bzw. Kran gegeben sein.
Wer macht die Anschlussarbeiten oder die Montage?
Unsere Leistung beinhaltet die Anschlüsse und Verbindungen innerhalb der Containermodule. Den Anschluss der werkseitig erstellten Leitungen (Wasser + Kanal + Strom) an die vorbereiteten Versorgungsleitungen, muss bauseits durch örtliche Betriebe erstellt werden. Im Projektverlauf werden die verschiedenen Anschlussmöglichkeiten abgeklärt.
Gestalten Sie Ihren Container selbst!
Ob Einzelcontainer oder Mehrfachcontainer unsere preiswerten, herkömmlich, errichteten Wohngebäude beinhalten vollständig alle derzeitig gegebenen Anforderungen. Nach Wunsch können unsere Experten eine visuelle Darstellung Ihrer Wunschcontainer erstellen.
Container konfigurierenDie Conliving GmbH bietet Ihnen zahlreiche Variationen und Kombinationen an Containern. Von Einzelcontainern bis zu Mehrfach– und Bürocontainern, bieten wir eine umfangreiche Auswahl an Angeboten. Darüber hinaus kümmern wir uns, um die Sicherheit, den Transport und die Montage von Containern.
Die Conliving GmbH ist ein modernes und dynamisches Unternehmen, das sich mit der kompletten Herstellung, von industriellen Objekten, Stahlkonstruktionen, Containern und Modulbauten beschäftigt, d.h. von ihrem Design und Entwicklung bis auf die Herstellung und Montage. Wir bieten Ihnen preiswerte Produkte, eine schnelle Lieferung und große Kapazitäten. Egal, ob Sie kurzfristig neue Räumlichkeiten benötigen, oder die Auslagerung Ihres Geschäftes planen, wir sind der ideale Partner bei der Umsetzung Ihrer Wünsche und Ziele.
Durch eine schnelle Abwicklung und geringe Lieferzeit sind die Kauflösungen von der Conliving GmbH die ideale Lösung um schnell neuen Wohnraum zu schaffen.
LL-C (Certifaction)
LL-C (Certifaction)
LL-C (Certifaction)
LL-C (Certifaction)
Hallo! Wir haben bemerkt, dass Sie sich schon eine Weile auf unserer Seite aufhalten.
Brauchen Sie Hilfe oder haben Sie Fragen zu unseren Produkten und Services? Wenn ja, geben Sie uns gerne Ihre Kontaktdaten, und wir melden uns umgehend bei Ihnen. Unser Team steht bereit, um Ihnen den bestmöglichen Service zu bieten.
